神楽岡工作公司
花の美術館
1.  概要 2.  構成 3.  構造・内装

■ 構成

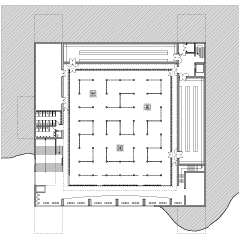
本施設は、造成された敷地中央に位置する「花庭」と、その両側に並ぶ二棟の地上階(南・北棟)、及び「花庭」基礎部=斜面に沈み込んだ地下階から構成される。



鳥瞰

湖側より



断面図


◆地上階

アプローチは駐車場からスロープを経て、湖と対岸の山々を臨む「花庭」にはじまる。四季折々の草花が植えられた「花庭」は諸部門への前庭であり、動線の交錯点である。周囲を巡るスリット状のトップライトは、二重ガラスを通じ直下に位置する展示室へ仄かな光を導く。南棟は展示部門へのエントランスであり、湖側の突端にはカフェが配される。北棟には管理部門及び研修部門がおさめられている。

来訪者は、まずここで氏が作品のモチーフとする草花を自らの眼で鑑賞し、のち施設へと入場する。


断面図


◆地下階

地下階には主に、日光・温湿度の変化を嫌う収蔵部門及び展示部門が配される。展示室は集成材、大径円柱、角材といった木の列柱群により構成される。これらの列柱群は地上部の「花庭」を直接に支持する構造体であり、いわば「花庭」の「根」である。


展示室内観

氏の作品には、均質な「白い箱」はふさわしくない。その作品の底流を流れる力強さと自然への敬意を表現する木構造による大空間は、壁面のフロストガラスからもれる何重にも濾過された柔らかな自然光と相まって、神秘的な空間を形成するだろう。展示室は管理上、3つの常設展示室と企画展示室に分けられるが、その境界は基本的に曖昧であり、来館者は列柱の森を自由にさまよい歩き、鑑賞する。
展示室東側は湖面を臨むオープンなスペースであり、図書・情報・休憩のためのロビーである。


断面図



鑑賞を終えた来訪者は、ふたたび地上の「花庭」を訪れる。この時彼らは、そこにある同じ草花を見つめる視線が、以前とほんの少し変わったことに気付くだろう。そして帰路につく。


「作品とそのモチーフの対置」というこのあまりにも単純な構図は、描かれた作品そのものを鑑賞する場としての美術館にはふさわしくないだろう。しかし、氏の作品世界を深く理解するためにその視線を願わくば共有する方法として、有効であると考える。




構造・内装
What's NEW/JOURNAL/WORKs/PROJECTs/REPORTs/FELLOWs/About Us
■